Descrizione
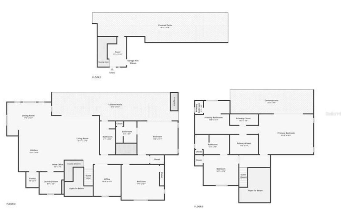
An exceptional ultra-luxury waterfront estate offering panoramic water views, refined architecture, and complete privacy. This elegant three-story coastal residence is positioned directly on the water with breathtaking views of Tampa Bay, where dolphins are a frequent and captivating sight. Designed for luxury living and high-end entertaining, the home features four bedrooms, three bathrooms, and a private office. The chef’s kitchen showcases premium quartzite countertops, gas cooking, and a layout ideal for both everyday living and upscale gatherings. Sun-filled interiors open seamlessly to two expansive luxury balconies overlooking the bay. Outdoors, enjoy a resort-style waterfront lifestyle with a private summer kitchen, absolute privacy, and direct boating access. The property includes two boat lifts plus a jet ski lift, ideal for yacht and water-sport enthusiasts. A covered three-car garage and generous storage complete this rare luxury waterfront home, just minutes from downtown St. Petersburg, beaches, fine dining, and major highways.














